13734 Evanswood, San Antonio, TX 78233
Property Photos
Would you like to sell your home before you purchase this one?
Priced at Only: $224,999
For more Information Call:
Address: 13734 Evanswood, San Antonio, TX 78233
Property Location and Similar Properties
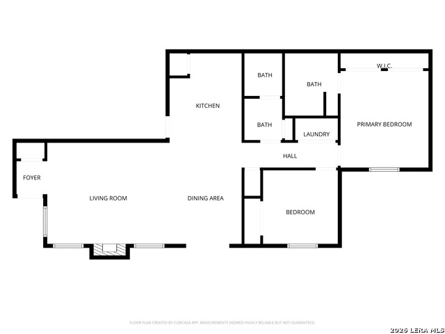
- MLS#: 1939946 ( Single Residential )
- Street Address: 13734 Evanswood
- Viewed: 2
- Price: $224,999
- Price sqft: $215
- Waterfront: No
- Year Built: 1981
- Bldg sqft: 1045
- Bedrooms: 2
- Total Baths: 2
- Full Baths: 2
- Garage / Parking Spaces: 1
- Days On Market: 80
- Additional Information
- County: BEXAR
- City: San Antonio
- Zipcode: 78233
- Subdivision: Woodstone
- District: North East I.S.D.
- Elementary School: Woodstone
- Middle School: Wood
- High School: Madison
- Provided by: White Line Realty LLC
- Contact: Silvana Scacchi
- (786) 344-7073

- DMCA Notice
-
DescriptionWelcome to 13734 Evanswoods in San Antonio! This fully remodeled, turn key gem offers a sleek, modern feel throughout and is completely move in ready. The designer kitchen is a true showstopper, featuring custom white cabinetry, elegant black countertops, a stylish subway tile backsplash, and striking pendant lighting suspended from a custom wood beam, along with brand new stainless steel oven range and refrigerator. The bathrooms have been beautifully updated with new cabinets and classic white subway tile, creating a clean, modern look that perfectly complements the home's style. Enjoy cozy evenings in the city by the inviting fireplace, adding warmth and charm to the living space. The home offers plenty of storage, including a coat closet in the foyer, plus a convenient laundry closet ready for your washer and dryer. Step outside to a true backyard retreat, designed for year round enjoyment. This beautifully xeriscaped, low maintenance oasis features an expansive covered gazebo style patio with ceiling fans, perfect for outdoor dining, entertaining, or relaxing in the shade. The fully wood fenced yard offers privacy, functionality, and plenty of space to gather with family and friends. Walking distance to Woodstone Elementary School and conveniently located near popular restaurants, shopping, and scenic nature trails. This neighborhood has so much to offer don't miss this exceptional opportunity. A true GEM, send your offers, SELLER MOTIVATED!
Features
Building and Construction
- Apprx Age: 45
- Builder Name: Unknown
- Construction: Pre-Owned
- Exterior Features: Brick, Siding
- Floor: Ceramic Tile
- Foundation: Slab
- Kitchen Length: 10
- Other Structures: Gazebo
- Roof: Composition
- Source Sqft: Appsl Dist
Land Information
- Lot Description: Xeriscaped
- Lot Improvements: Street Paved, Sidewalks, City Street
School Information
- Elementary School: Woodstone
- High School: Madison
- Middle School: Wood
- School District: North East I.S.D.
Garage and Parking
- Garage Parking: One Car Garage
Eco-Communities
- Water/Sewer: Water System, Sewer System
Utilities
- Air Conditioning: One Central
- Fireplace: One, Living Room
- Heating Fuel: Electric
- Heating: Central
- Recent Rehab: Yes
- Utility Supplier Elec: CPS
- Utility Supplier Water: SAWS
- Window Coverings: None Remain
Amenities
- Neighborhood Amenities: None
Finance and Tax Information
- Days On Market: 80
- Home Faces: South
- Home Owners Association Mandatory: None
- Total Tax: 5069.63
Rental Information
- Currently Being Leased: No
Other Features
- Contract: Exclusive Right To Sell
- Instdir: From Nacogdoches go to Dreamwood Dr. then make a right on Creekwood St until that street converts to Evanswood St.
- Interior Features: One Living Area, 1st Floor Lvl/No Steps, Open Floor Plan, Laundry in Closet
- Legal Desc Lot: 10
- Legal Description: Ncb 16281 Blk 9 Lot 10
- Miscellaneous: As-Is
- Occupancy: Vacant
- Ph To Show: 786-344-7073
- Possession: Closing/Funding
- Style: One Story
Owner Information
- Owner Lrealreb: No
- Lilia Ortega, ABR,GRI,REALTOR ®,RENE,SRS
- Premier Realty Group
- Office: 210.641.1400
- Mobile: 210.781.8911
- homesbylilia@outlook.com













































